Студия элитного жилья
Студия дизайна интерьера
Россия
Санкт-Петербург
Санкт-Петербург
ул. Маяковского д.25
+78127704765
info@akimenkov.ru
7841405640
Интерьер квартиры в ЖК «Ботаника» — Студия Александра Акименкова
Акции
Общество с ограниченной ответственностью «СЭЖ-Строй»

Юридический адрес191014, Санкт-Петербург,
ул. Маяковского д. 25, литер «А», пом. 20-Н

Время работыПн – Пт: с 10.00 до 20.00
Сб – Вс: выходной

Банковские реквизитыр/с 40702810332000004311
в филиале "САНКТ-ПЕТЕРБУРГСКИЙ"
АО "АЛЬФА БАНК"

БИК 44030786
к/с 30101810600000000786
ИНН 7842334550
КПП 784101001
ОГРН 1069847457162

arrow-sm-left Все проекты
Квартира 100 м² в ЖК «Ботаника»
arrow-sm-left-fix

Светлый интерьер в стиле современной классики

ИНТЕРЬЕР КВАРТИРЫ
ЖК «Ботаника», 100 м²
Современная классика

Интерьер этой квартиры оформлен современном классическом стиле. В ходе работы над проектом дизайнер нашей студии Алиса Литвин разработала новое, функциональное планировочное решение, подобрала материалы, оборудование и мебель. За реализацию отвечает Никулин Александр - прораб нашей студии.

Проект в процессе реализации .Процесс и результат - в конце проекта.

Интерьер этой квартиры оформлен современном классическом стиле. В ходе работы над проектом дизайнер нашей студии Алиса Литвин разработала новое, функциональное планировочное решение, подобрала материалы, оборудование и мебель. За реализацию отвечает Никулин Александр - прораб нашей студии.


Проект в процессе реализации .Процесс и результат - в конце проекта.

Гостиная

Кухня

Гардеробная

Детская комната

Ванная комната

Процесс реализации

После разработки дизайн-проекта наша компания приступила к его реализации. Под руководством опытного прораба Александра Никулина был проведен демонтаж и возведение новых конструкций, проложены коммуникации (электрика, водоснабжение, вентиляция), выполнены все финишные отделочные работы.

После разработки дизайн-проекта наша компания приступила к его реализации. Под руководством опытного прораба Александра Никулина был проведен демонтаж и возведение новых конструкций, проложены коммуникации (электрика, водоснабжение, вентиляция), выполнены все финишные отделочные работы.

Авторский надзор, контроль над точностью реализации дизайн-проекта и комплектацией занимался автор проекта - дизайнер Литвин Алиса. В процессе авторского надзора были подобраны материалы (цвет, фактура), заказана вся мебель и оборудование на лучших условиях.

Авторский надзор, контроль над точностью реализации дизайн-проекта и комплектацией занимался автор проекта - дизайнер Литвин Алиса. В процессе авторского надзора были подобраны материалы (цвет, фактура), заказана вся мебель и оборудование на лучших условиях.

Техническая документация

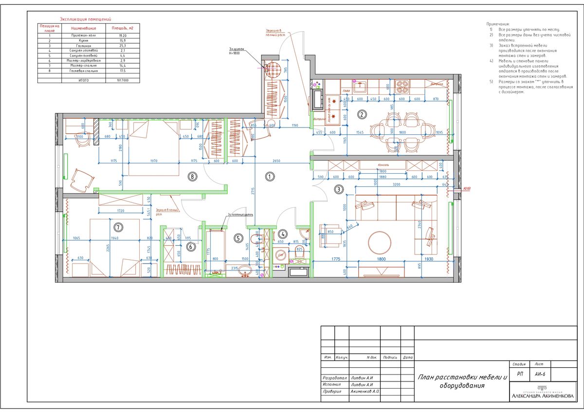
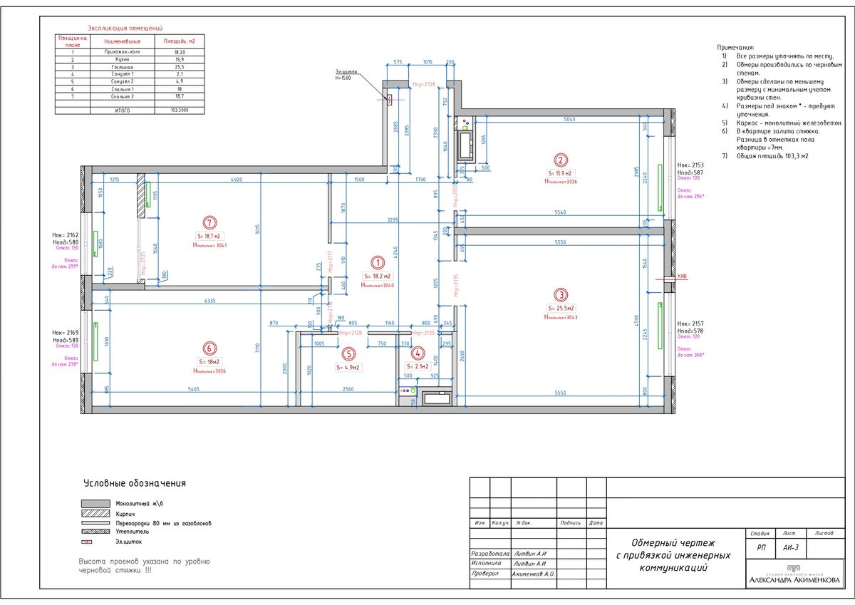
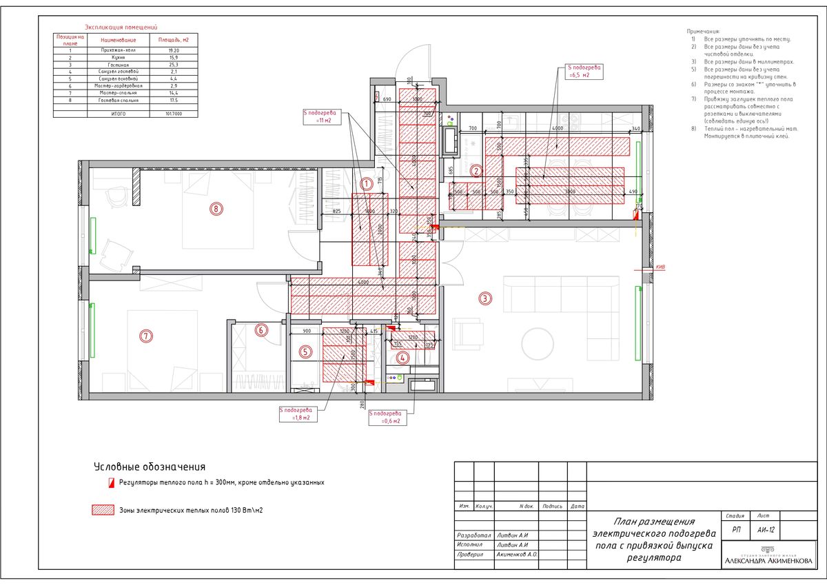
В рамках работы над дизайн-проектом был разработан интерьер квартиры, подобраны все материалы, мебель, оборудование и разработана техническая документация, необходимая для реализации проекта. В документацию вошли планы обмена, демонтажа и возводимых перегородок, планы расстановки мебели, оборудования.

В рамках работы над дизайн-проектом был разработан интерьер квартиры, подобраны все материалы, мебель, оборудование и разработана техническая документация, необходимая для реализации проекта. В документацию вошли планы обмена, демонтажа и возводимых перегородок, планы расстановки мебели, оборудования.

Исходная планировка:
Новое планировочное решение:

Также рассчитаны все технические аспекты (электрика, сантехника, водоснабжение и т.д.), сделаны развертки всех помещений, подготовлены спецификации на оборудование и материалы.

Также рассчитаны все технические аспекты (электрика, сантехника, водоснабжение и т.д.), сделаны развертки всех помещений, подготовлены спецификации на оборудование и материалы.

О проекте

Стиль: современная классика

Используемые бренды: Dantone home, Masiero, BB Italia, Minotti, Porselanosa, Florim, Rooma Desing и другие.

Автор проекта: Литвин Алиса (смотреть лучшие работы дизайнера)

Реализация: дизайн-проект, ремонтно-отделочные работы, комплектация и наполнение интерьера - студия Александра Акименкова.

Стиль: современная классика

Используемые бренды: Dantone home, Masiero, BB Italia, Minotti, Porselanosa, Florim, Rooma Desing и другие.

Автор проекта: Литвин Алиса (смотреть лучшие работы дизайнера)

Реализация: дизайн-проект, ремонтно-отделочные работы, комплектация - студия Александра Акименкова.

Команда проекта:

Литвин Алиса
Литвин Алиса
Дизайнер
Чепикова Светлана
Чепикова Светлана
Арт-директор
Никулин Александр
Никулин Александр
Производитель работ
Закажите дизайн уже сегодня!