Студия элитного жилья
Студия дизайна интерьера
Россия
Санкт-Петербург
Санкт-Петербург
ул. Маяковского д.25
+78127704765
info@akimenkov.ru
7841405640
Дизайн квартиры в ЖК «Созидатели» — Студия Александра Акименкова
Акции
Общество с ограниченной ответственностью «СЭЖ-Строй»

Юридический адрес191014, Санкт-Петербург,
ул. Маяковского д. 25, литер «А», пом. 20-Н

Время работыПн – Пт: с 10.00 до 20.00
Сб – Вс: выходной

Банковские реквизитыр/с 40702810332000004311
в филиале "САНКТ-ПЕТЕРБУРГСКИЙ"
АО "АЛЬФА БАНК"

БИК 44030786
к/с 30101810600000000786
ИНН 7842334550
КПП 784101001
ОГРН 1069847457162

arrow-sm-left Все проекты
ЖК «Созидатели», 108м²
arrow-sm-left-fix

Дизайн квартиры в ЖК «Созидатели»

ИНТЕРЬЕР КВАРТИРЫ
ЖК «Созидатели», 108 м²
Современная классика

Светлана Чепикова - ведущий дизайнер нашей студии - разработала дизайн-проект квартиры в современной классике. В ходе работы над проектом была создана новая планировка, которая учитывает все пожелания Заказчиков. Например, отдельный кабинет и большая мастер-спальня. Также дизайнером были подобраны материалы, мебель, цветовая гамма и разработана техническая документация для проекта.

В настоящий момент проект в процессе реализации

Светлана Чепикова - ведущий дизайнер нашей студии - разработала дизайн-проект квартиры в современной классике. В ходе работы над проектом была создана новая планировка, которая учитывает все пожелания Заказчиков. Например, отдельный кабинет и большая мастер-спальня. Также дизайнером были подобраны материалы, мебель, цветовая гамма и разработана техническая документация для проекта.


В настоящий момент проект в процессе реализации

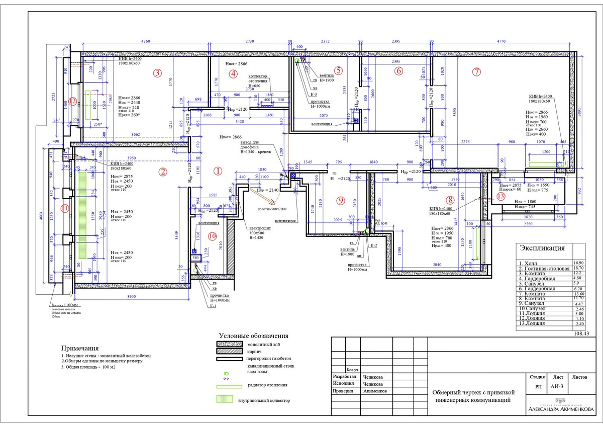
Техническая документация

В ходе работы над дизайн-проектом мы учли все пожелания Заказчика, создали новое планировочное решение, создали реалистичную 3D-визуализацию и подготовили полный пакет строительный чертежей. В настоящее время строительный отдел нашей студии занимается реализацией проекта (строительно-отделочные работы).

Дизайн-проект, авторский надзор и комплектация - Агошкова Кристина. Строительно-отделочные работы, технадзор - Рысев Александр.

В ходе работы над дизайн-проектом мы учли все пожелания Заказчика, создали новое планировочное решение, создали реалистичную 3D-визуализацию и подготовили полный пакет строительный чертежей. В настоящее время строительный отдел нашей студии занимается реализацией проекта (строительно-отделочные работы).


Дизайн-проект, авторский надзор и комплектация - Чепикова Светлана. Строительно-отделочные работы, технадзор - Рысев Александр.

Дизайн квартиры в ЖК «Созидатели»

О проекте: 108м², современная классика

Используемые бренды: Artfabric, Commune, Dantone home, CAZARINA INTERIORS, Idealbeds, Skdesign. Sensorsleep, Maytoni, Kink Light, Artfabric, Divinare, LAUFEN, Hansgrohe, Flavikerpisa, Florim, Италон, KERAMA MARAZZI, Cornerdesign

Автор проекта: Светлана Чепикова

Что сделано: разработан полный дизайн-проект с технической документацией, перепланировкой, спецификациями и ведомостями.

О проекте: 108м², современная классика

Используемые бренды: Artfabric, Commune, Dantone home, CAZARINA INTERIORS, Idealbeds, Skdesign. Sensorsleep, Maytoni, Kink Light, Artfabric, Divinare, LAUFEN, Hansgrohe, Flavikerpisa, Florim, Италон, KERAMA MARAZZI, Cornerdesign

Автор проекта: Светлана Чепикова

Что сделано: разработан полный дизайн-проект с технической документацией, перепланировкой, спецификациями и ведомостями.

Команда проекта:

Чепикова Светлана
Чепикова Светлана
Дизайнер
Третьяк Виталий
Третьяк Виталий
Визуализатор
Рысев Александр
Рысев Александр
Производитель работ
Закажите дизайн уже сегодня!