Студия элитного жилья
Студия дизайна интерьера
Россия
Санкт-Петербург
Санкт-Петербург
ул. Маяковского д.25
+78127704765
info@akimenkov.ru
7841405640
Дизайн квартиры в ЖК «Четыре Горизонта». Ремонт "под ключ" — Студия Александра Акименкова
Акции
Общество с ограниченной ответственностью «СЭЖ-Строй»

Юридический адрес191014, Санкт-Петербург,
ул. Маяковского д. 25, литер «А», пом. 20-Н

Время работыПн – Пт: с 10.00 до 20.00
Сб – Вс: выходной

Банковские реквизитыр/с 40702810332000004311
в филиале "САНКТ-ПЕТЕРБУРГСКИЙ"
АО "АЛЬФА БАНК"

БИК 44030786
к/с 30101810600000000786
ИНН 7842334550
КПП 784101001
ОГРН 1069847457162

arrow-sm-left Все проекты
ЖК «Четыре Горизонта», 75 м²
arrow-sm-left-fix

Дизайн квартиры в ЖК «Четыре Горизонта»

ИНТЕРЬЕР КВАРТИРЫ
ЖК «Четыре Горизонта», 75 м²
Контемпорари, ар-деко, современная классика

Проект этой квартиры - это современный интерьер, в котором мы объединили различные фактуры в единое целое. Деревянный паркет, шпонированные панели, мрамор, декоративные штукатурка, стеклянные и латунные вставки, гипсовая лепнина и молдинги - все органично сосуществует, не вызывая хаоса.

Проект в процессе реализации.

Проект этой квартиры - это современный интерьер, в котором мы объединили различные фактуры в единое целое. Деревянный паркет, шпонированные панели, мрамор, декоративные штукатурка, стеклянные и латунные вставки, гипсовая лепнина и молдинги - все органично сосуществует, не вызывая хаоса.

Гостиная

Прихожая

Спальня

Гардеробная

Ванная комната

Детская комната

Процесс реализации

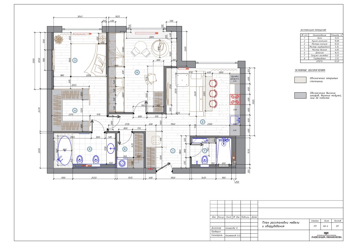
В рамках работы над дизайн-проектом дизайнером студии был разработан интерьер квартиры, подобраны цветовая гамма, материалы, мебель, оборудование. Также было разработано новое планировочное решение (перепланировка) с учетом всех пожеланий и потребностей Заказчика. В техническую документацию, необходимую для реализации проекта, вошли планы обмена, демонтажа и возводимых перегородок, планы расстановки мебели, оборудования.

В рамках работы над дизайн-проектом дизайнером студии был разработан интерьер квартиры, подобраны цветовая гамма, материалы, мебель, оборудование. Также было разработано новое планировочное решение (перепланировка) с учетом всех пожеланий и потребностей Заказчика. В техническую документацию, необходимую для реализации проекта, вошли планы обмена, демонтажа и возводимых перегородок, планы расстановки мебели, оборудования.

Исходная планировка:
Новое планировочное решение:

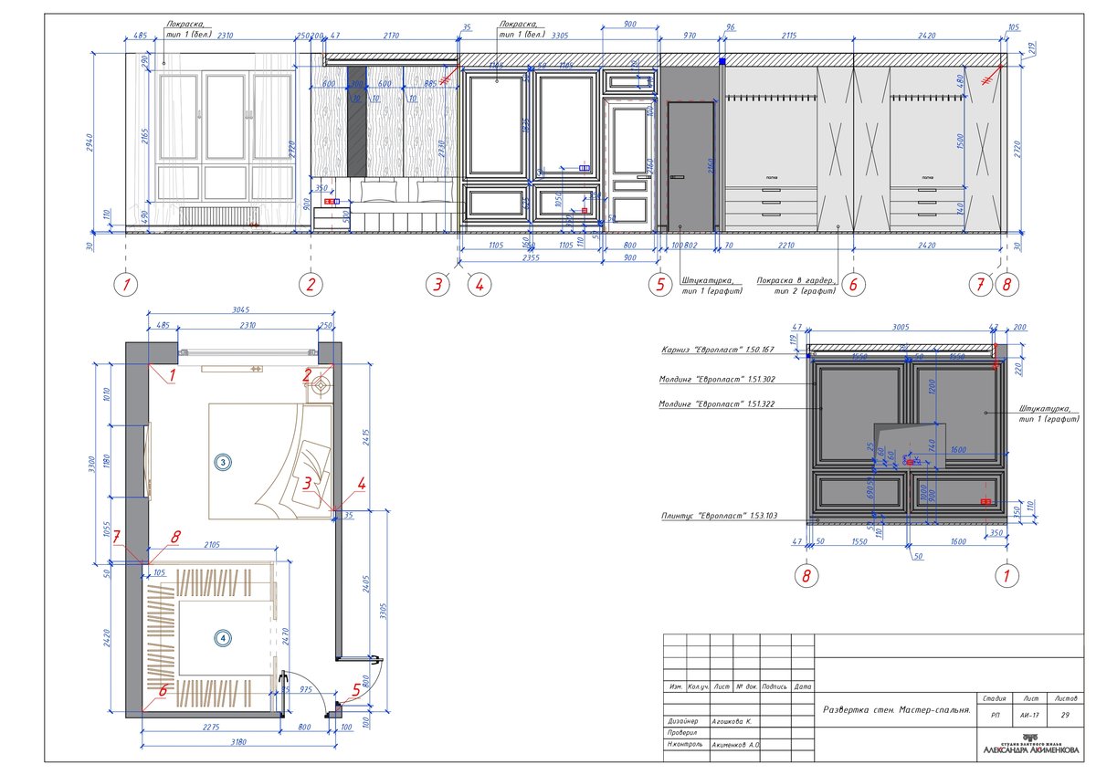
Самым интересным решением в этом проекте стала мастер-блок, который представляет собой единое приватное пространство. Оно включает спальню, гардеробную и большую ванную комнату.

Самым интересным решением в этом проекте стала мастер-блок, который представляет собой единое приватное пространство. Оно включает спальню, гардеробную и большую ванную комнату.

Кстати, во время реализации проекта Заказчики попросили полностью переделать детскую комнату (доп.услуга), оставив первоначальные размеры комнаты.

Кстати, во время реализации проекта Заказчики попросили полностью переделать детскую комнату (доп.услуга), оставив первоначальные размеры комнаты.

Концепт детской комнаты

В рамках проекта было разработано несколько вариантов интерьера. Например, первоначальный вариант детской комнаты был оформлен в более светлых оттенках и имел меньше мест хранения.

В рамках проекта было разработано несколько вариантов интерьера. Например, первоначальный вариант детской комнаты был оформлен в более светлых оттенках и имел меньше мест хранения.

О проекте

Стиль: контемпорари, ар-деко, современная классика

Особенности: гостиная, объединенная с прихожей, мастер-спальня, включающая спальню, отдельную гардеробную и большую ванную, перепланировка

Используемые бренды: Natuzzi, Baroncelli, Union, REX-ceramiche, Vibieffe, Cole&Son, Serip, Villeroy & Boch, Волховец, ЦентрСвет и другие.

Автор проекта: Агошкова Кристина (смотреть лучшие работы)

Что сделано: разработан дизайн-проекта квартиры с новой планировкой, большой мастер-спальней и несколькими вариантами детской и ванной комнат.

Особенности: гостиная, объединенная с прихожей, мастер-спальня, включающая спальню, отдельную гардеробную и большую ванную, перепланировка

Используемые бренды: Natuzzi, Baroncelli, Union, REX-ceramiche, Vibieffe, Cole&Son, Serip, Villeroy & Boch, Волховец, ЦентрСвет и другие.

Автор проекта: Агошкова Кристина (смотреть лучшие работы)

Что сделано: разработан дизайн-проекта квартиры с новой планировкой и большой мастер-спальней

Команда проекта:

Агошкова Кристина
Агошкова Кристина
Дизайнер
Чепикова Светлана
Чепикова Светлана
Арт-директор
Закажите дизайн уже сегодня!